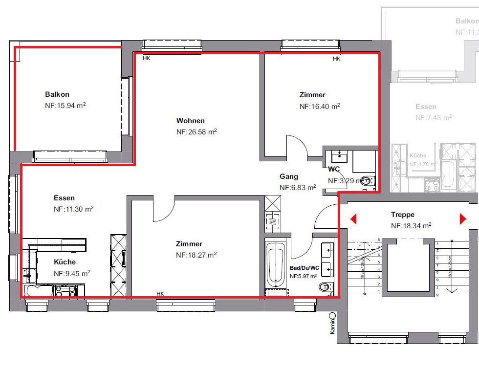
4.0 Zi-Wohnung – 1.OG
- CHF 2'220
Übersicht
- 4.0
- 98 m²
Beschreibung
In Schaan vermieten wir eine attraktive 4.0-Zimmer-Wohnung in zentrumsnaher und zugleich erhöhter Lage. Die Wohn- und Schlafräume sind mit hochwertigem Eichenparkett ausgestattet, während helle keramische Platten in den übrigen Räumen für ein freundliches Wohnambiente sorgen. Die moderne Küche präsentiert sich lichtdurchflutet und ist mit einer dunklen Steinabdeckung versehen. Im Eingangsbereich bietet eine praktische Einbaugarderobe zusätzlichen Stauraum. Der gedeckte Balkon lädt zum Verweilen ein und rundet das angenehme Wohngefühl ab.
Zur Wohnung gehören zudem ein Kellerabteil, ein Lift ist vorhanden, und Waschmaschine sowie Tumbler stehen zur Mitbenützung zur Verfügung. Pro Wohnung ist ausserdem ein Carport für CHF 100.00 sowie ein Aussenabstellplatz für CHF 50.00 vorgesehen.
Wenn Sie mehr über dieses Objekt erfahren möchten, rufen Sie uns an. Wir freuen uns auf Sie.
Dokumente
Preisdetails
- Preis CHF 2'220
- Mietpreis (netto) 1970
- Nebenkosten 250 (Akonto)









