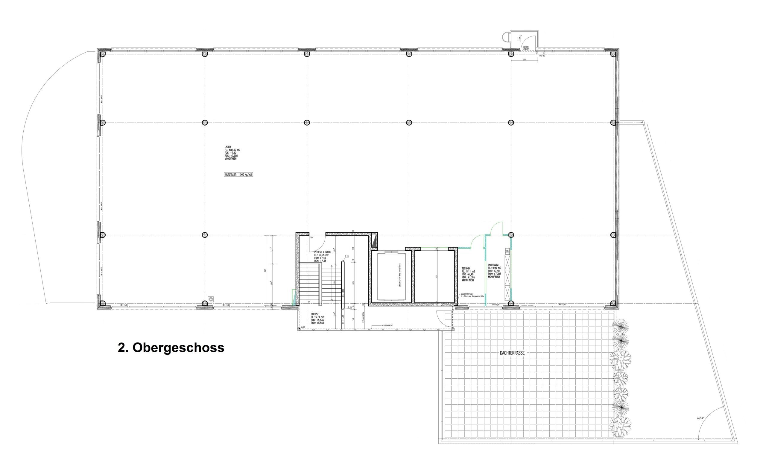
Lagerflächen im 2. Obergeschoss
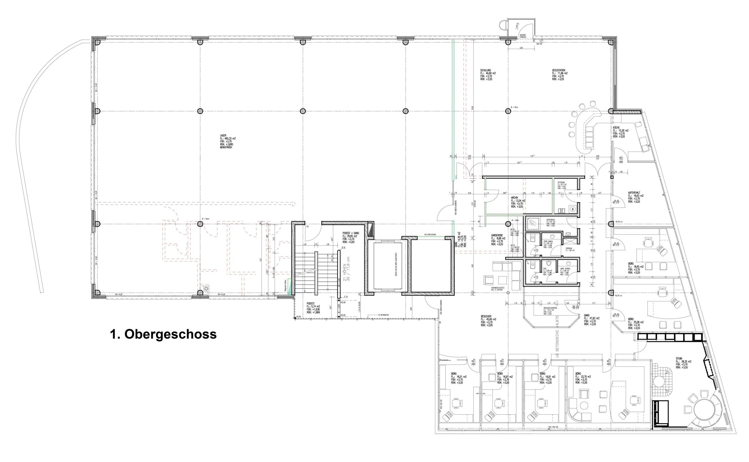
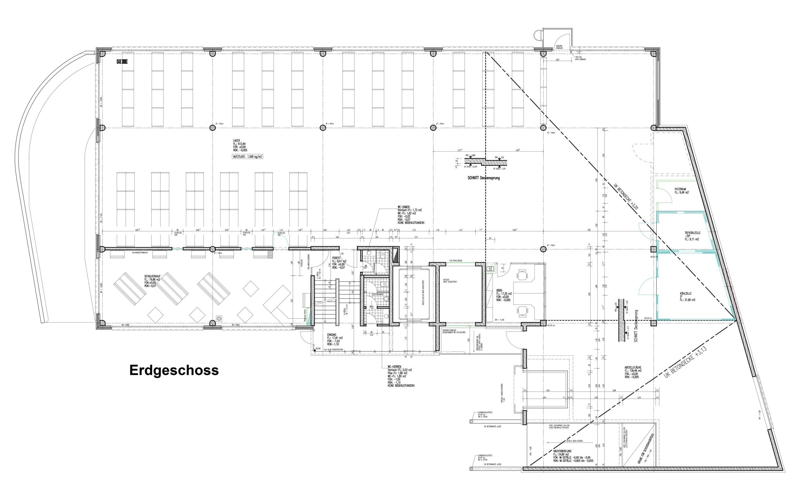
Das im Jahr 1999 erstellte Gewerbegebäude befindet sich in der Industrie- und Gewerbezone (IG) in Bendern und weist einen guten Ausbaustandard mit kompletter Infrastruktur, Büros, Besprechungszimmer, Aufenthalts-/Schulungsraum, Küche, grossen Lagerflächen und Kühlräumen auf.
Das viergeschossige Gebäude befindet sich innen wie aussen in einem gepflegten Zustand. Im Jahr 2017 wurde das komplette Dach mit einer Photovoltaikanlage ausgestattet.
Das 2. Obergeschoss verfügt über ca. 683 m2 Lagerflächen und eine grosszügige Dachterrasse mit 275 m2.
Ein Warenlift ist vorhanden. Eine praktische Rampe steht für LKW’s bereit. Das 2. Obergeschoss hat eine Raumhöhe zwischen ca. 3 m bis 4 m.
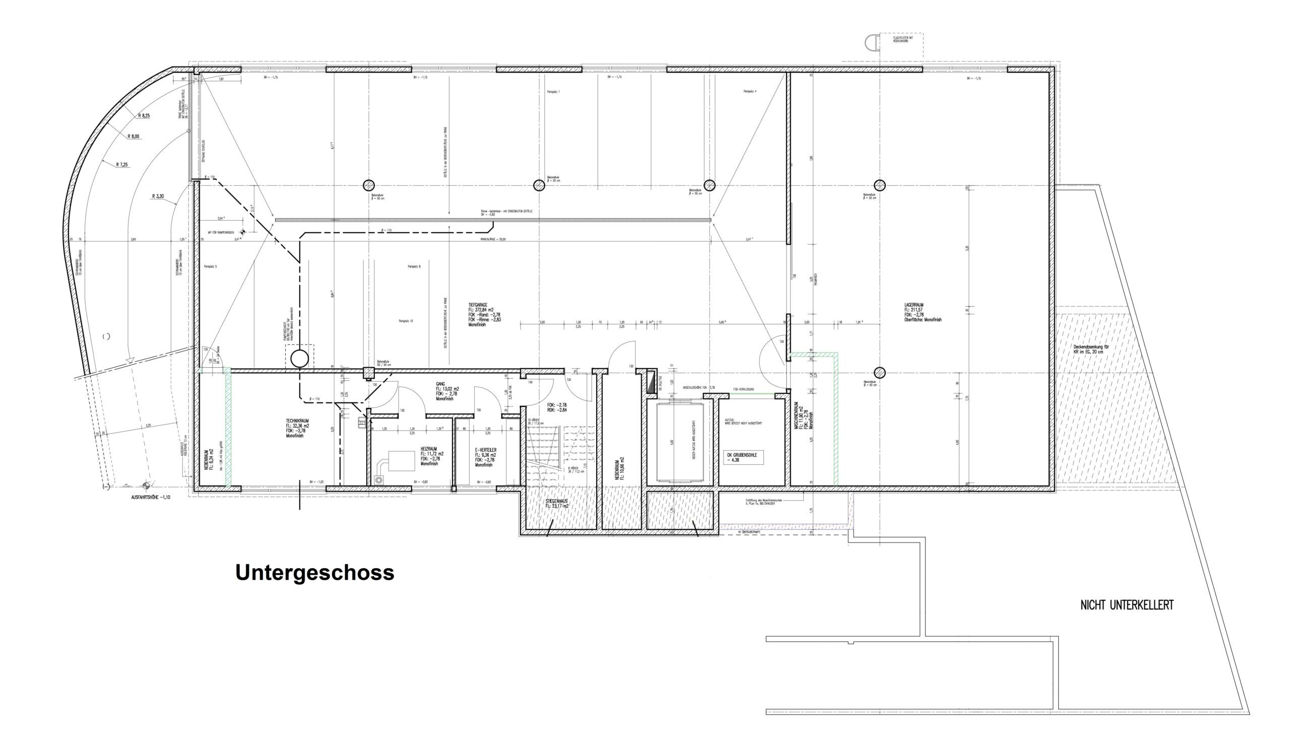
Es besteht eine gute Parksituation mit Parkplätzen direkt vor dem Eingang sowie eine kundenfreundliche Zufahrt. Zudem befinden sich an der Westseite des Gebäudes weitere Aussenparkplätze. Im Untergeschoss steht eine Tiefgarage mit zusätzlichen Parkplätzen zur Verfügung.










