Stilvolle, grosszügige 2.5-Zi-Wohnung im Erdgeschoss
  • CHF 1'850

Übersicht

  • 2.5
  • Räume
  • 1
  • Garage
  • 2022
  • Baujahr
  • 79 m²
  • Fläche

Beschreibung

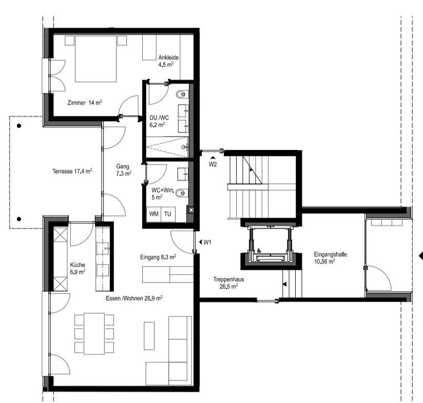
Willkommen in dieser großzügigen und gepflegten 2.5-Zimmer-Wohnung im Herzen eines neu erbauten Mehrfamilienhauses (Baujahr 2022). Mit 79m² bietet sie viel Raum zum Wohlfühlen und Entspannen.

Highlights auf einen Blick:

  • Helles und offenes Raumkonzept zwischen Küche, Esszimmer und Wohnzimmer
  • Großzügiges Haupt-Schlafzimmer mit eigenem Bad (en-Suite) mit Dusche
  • Moderne Küche mit den neuesten Geräten und viel Stauraum
  • Gäste-WC mit Waschmaschine und Tumbler
  • Praktische Garderobe im Eingangsbereich für viel Stauraum
  • Überdachte Loggia – perfekt für gemütliche Stunden im Freien
  • Terrasse
  • Hochwertiger Keramikboden in Holzoptik – stilvoll und pflegeleicht

Diese Wohnung besticht durch ihre moderne Ausstattung, durchdachte Raumaufteilung und die angenehme Atmosphäre.

Eine Wohnungsbesichtigung ist erst nach Erhalt des ausgefüllten Anmeldeformular für Mietobjekt WISI_1 möglich.

Gerne können Sie dieses direkt an janette.hasler@outlook.com schicken. 

 

Preisdetails

  • Preis CHF 1'850
  • Nebenkosten inkl. NK
  • Verfügbar ab 1. Februar 2026

Ähnliche Inserate

Compare listings

Vergleichen