Neubauprojekt (Büro/Gewerbe) Mauren
- Auf Anfrage
Übersicht
- 62
- 2027
Beschreibung
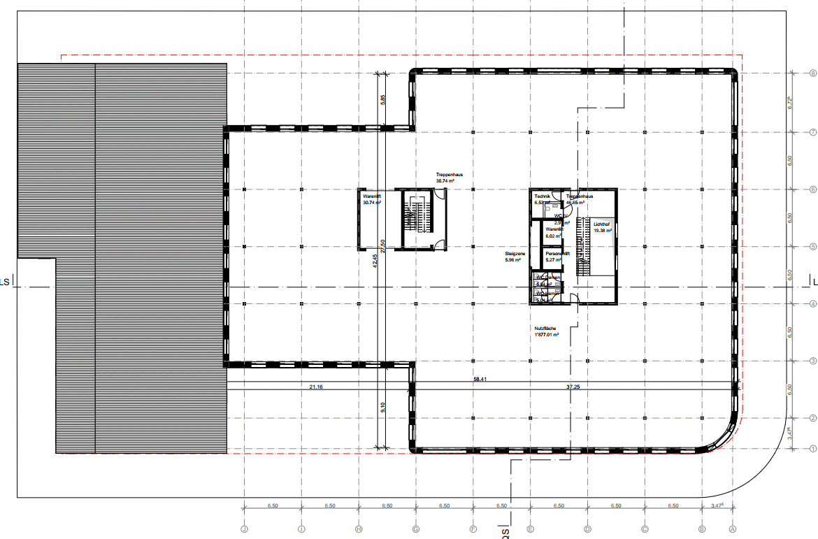
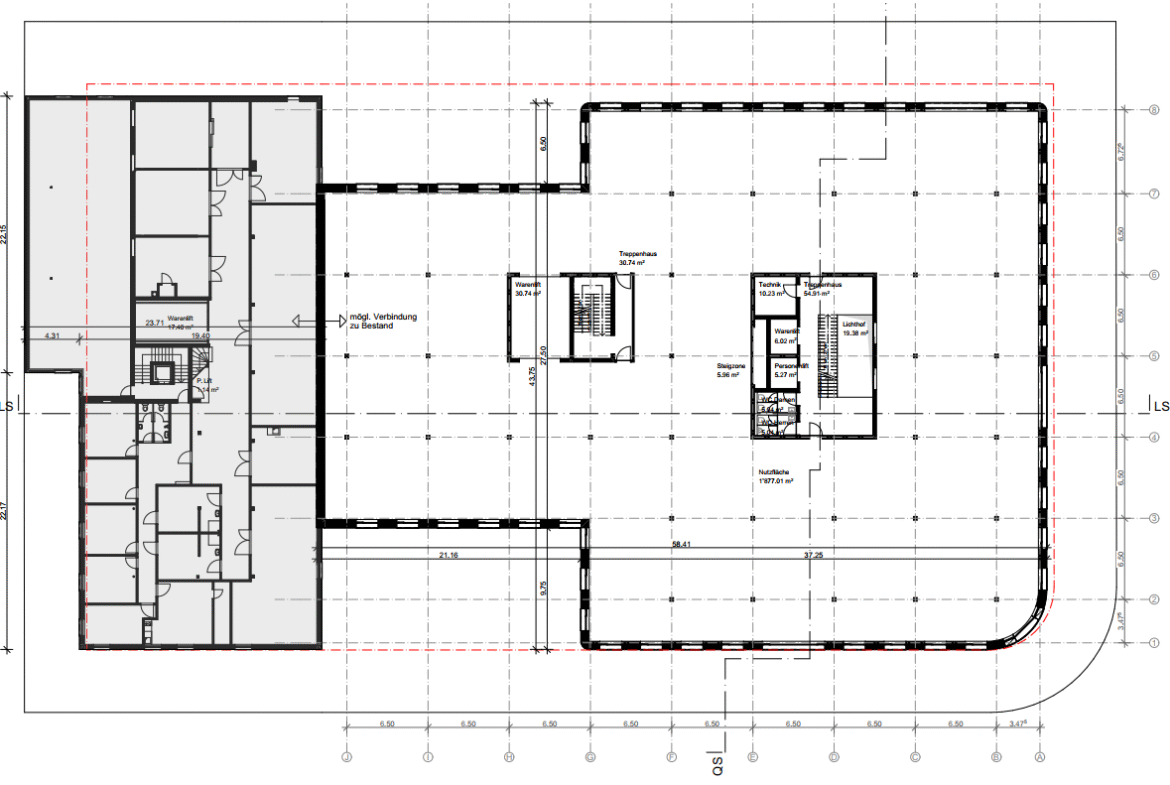
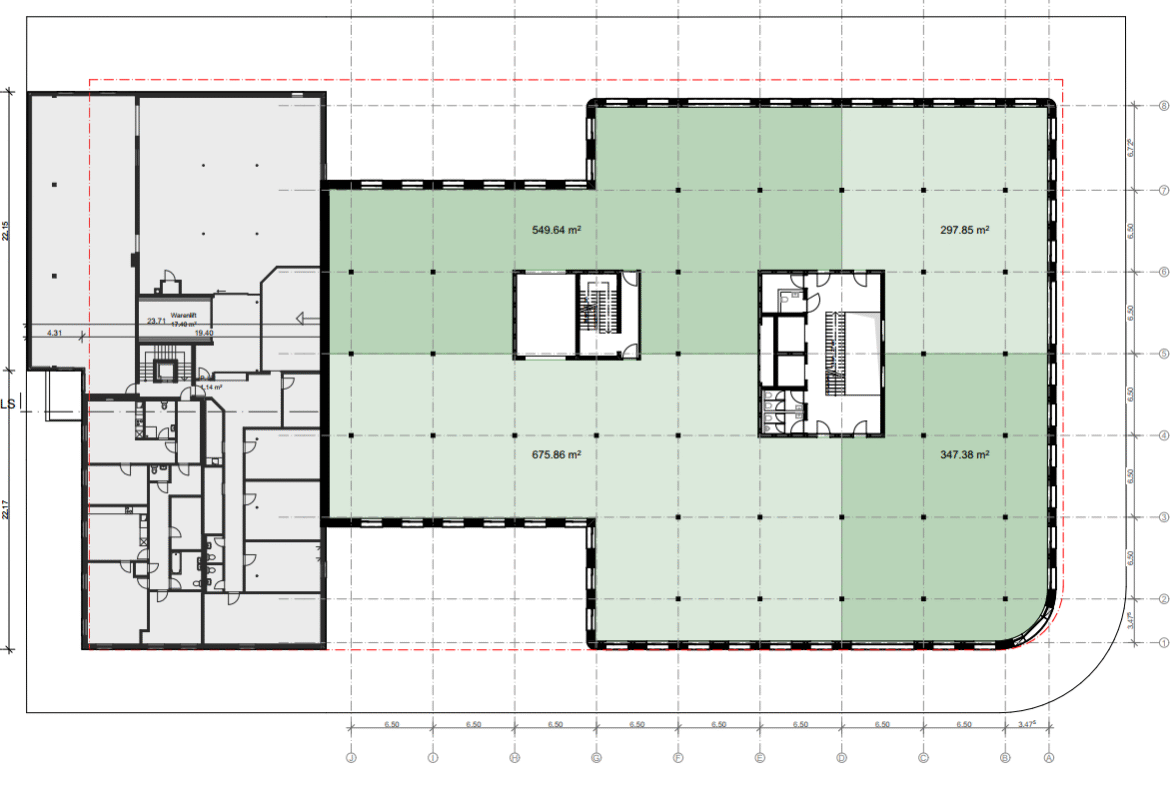
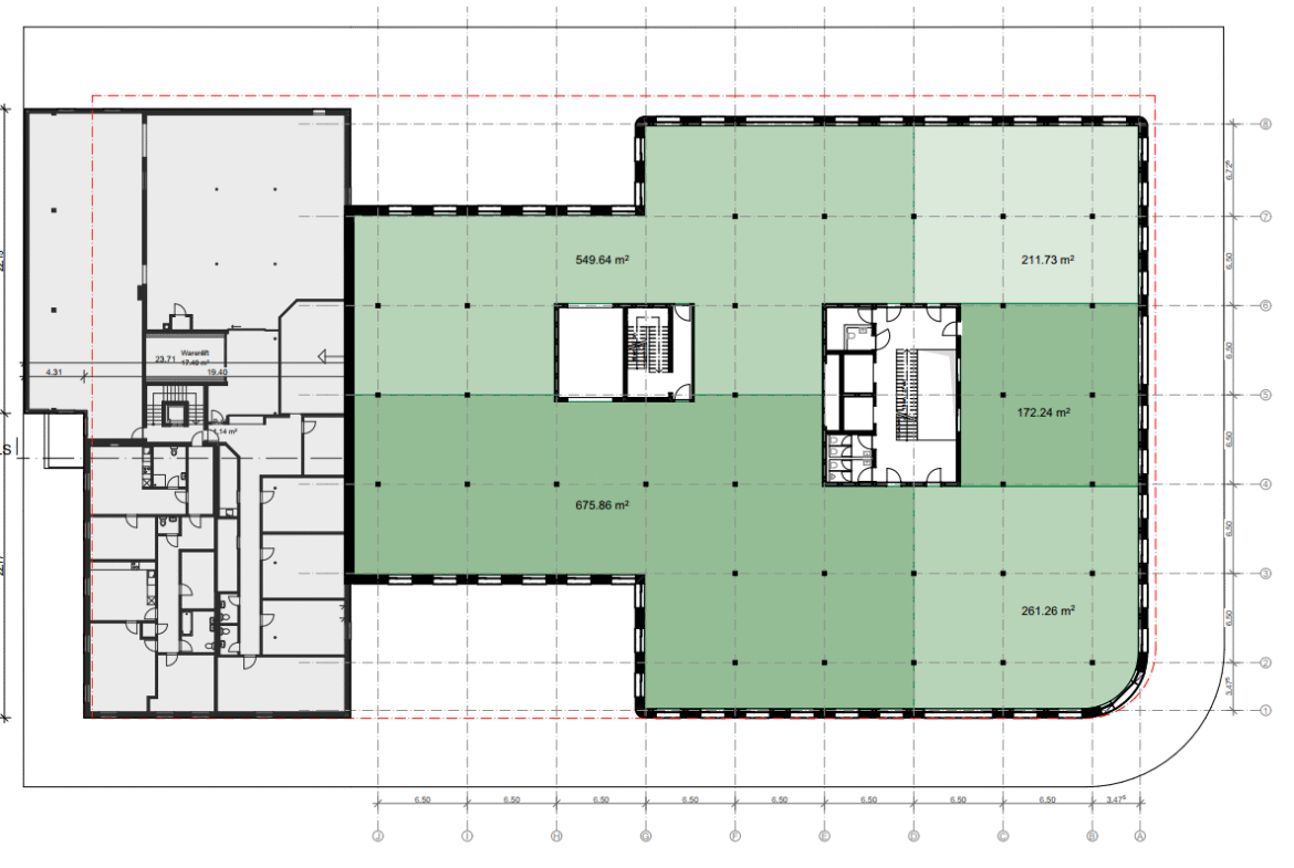
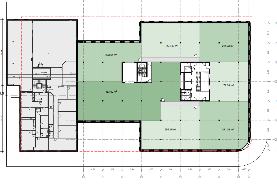
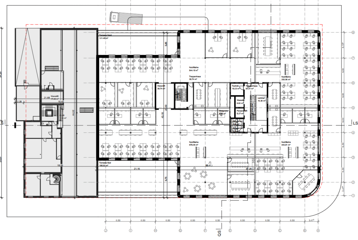
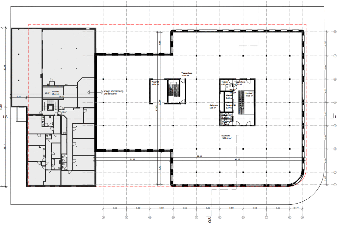
Detaillierte Beschreibung
- praktische Lage
- individuell nutzbare Flächen
- diverse Flächengrössen verfügbar
- EG – 4.OG plus Attikageschoss
- Diverse TGPP verfügbar
weitere Infos auch auffindbar unter: https://g16.li/
- weitere mögliche PP
- LKW Anlieferung mit Umschlagbereich
- moderne Architektur
- Baugesuch Winter 2024
- Baustart Sommer 2025
- Bauabschluss Sommer 2027
Preisdetails
- Preis Auf Anfrage












